Các Nội Dung Chính

Trong bối cảnh du lịch Bình Định bùng nổ với hơn 9,2 triệu lượt khách năm 2024, nhu cầu lưu trú chất lượng cao đang ngày càng lớn, nhưng nguồn cung bất động sản nghỉ dưỡng Wellness Onsen Retreat vẫn còn rất hạn chế. Chính vì thế, Baia Retreat Hội Vân xuất hiện như một “viên ngọc quý” – khu đô thị nghỉ dưỡng khoáng nóng tự nhiên đầu tiên và duy nhất tại Hội Vân, Phù Cát, Bình Định.
Gọi ngay [SĐT 0919 247 839] để được tư vấn và hỗ trợ tham quan dự án hoặc tham khảo thêm 1 dự án nhà phố liên kề cao cấp Phú Gia Royal Park với phong cách tân cổ điển nằm cách khu du lịch ghềnh ráng chỉ 3km.

| Thông tin | Chi tiết |
|---|---|
| Tên dự án | Baia Retreat Hội Vân |
| Chủ đầu tư | TTVN Group |
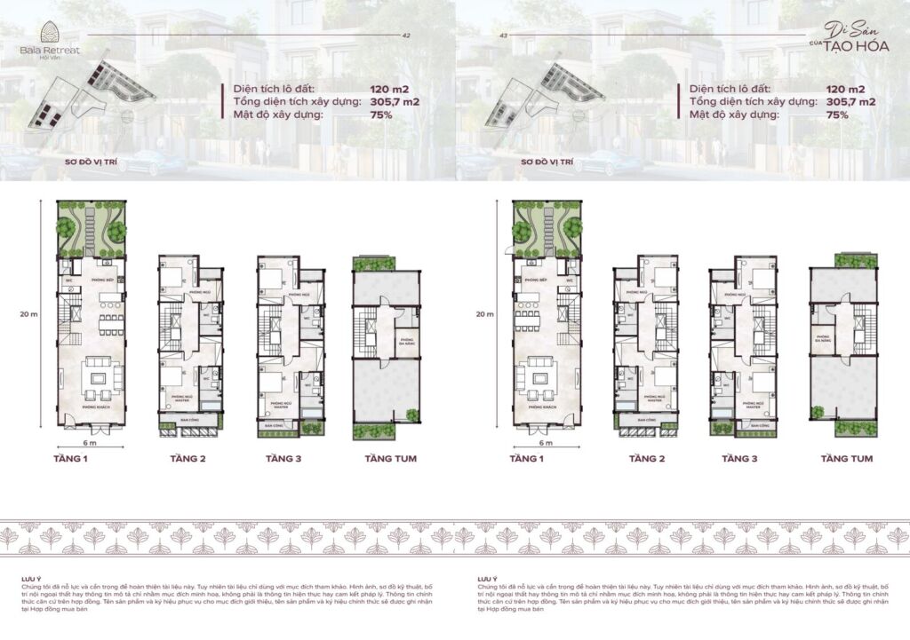
| Quy mô | 42,1 ha – gồm 371 sản phẩm nhà ở |
| Loại hình | Đô thị nghỉ dưỡng, Biệt thự đơn lập, song lập, liền kề |
| Đơn vị vận hành | Naniwa Issui (Nhật Bản – hơn 100 năm kinh nghiệm) |
| Pháp lý | Sở hữu lâu dài (đất ở đô thị, thổ cư 100%) |
| Vị trí | Thôn Hội Vân, xã Cát Hiệp, huyện Phù Cát, Bình Định |

Baia Retreat Hội Vân tọa lạc tại xã Cát Hiệp, huyện Phù Cát, tỉnh Bình Định nằm ngay giữa những tuyến kết nối giao thông huyết mạch:
Cách sân bay Phù Cát chỉ 15 phút
Cách Khu du lịch biển Cát Tiến 30 phút
Cách Cao tốc Bắc – Nam 5 phút
Cách Trung tâm TP Quy Nhơn 40 phút
Đặc biệt, dự án tiếp giáp suối khoáng nóng Hội Vân – top suối khoáng có độ sôi và khoáng chất tốt nhất Việt Nam – giúp định hình nơi đây thành tâm điểm nghỉ dưỡng – chăm sóc sức khỏe chuẩn Nhật đầu tiên tại Bình Định.
Baia Retreat Hội Vân là khu đô thị nghỉ dưỡng suối khoáng nóng tự nhiên, được phát triển bởi TTVN Group – một trong những đơn vị uy tín trong lĩnh vực năng lượng sạch và bất động sản nghỉ dưỡng. Dự án có quy mô 42ha với 371 sản phẩm nhà ở biệt lập
Đặc biệt: suối khoáng nóng Hội Vân – loại nước khoáng Radon quý hiếm phát lộ ngay trung tâm dự án, biến nơi đây thành thủ phủ wellness – chăm sóc sức khỏe hàng đầu khu vực Nam Trung Bộ.

Dự án chia thành 3 phân khu lớn:
| Phân khu | Số căn | Loại hình | Diện tích đất (m²) | Diện tích sàn (m²) |
|---|---|---|---|---|
| The Heritage | 72 | Biệt thự đơn lập | 250–300 | 410 |
| The Thera | 156 | Biệt thự song lập | 160–243 | 372 |
| The Signature | 143 | Nhà phố liền kề | 120 | 420 |


Video : Mẫu nhà phố liền kề

Video: Mẫu biệt thự song lập

Video : Mẫu biệt thự đơn lập

Mỗi sản phẩm đều được thiết kế để vừa có thể ở, vừa kinh doanh hoặc cho thuê dài hạn (hình thức wellness villa, mini hotel từ 6–10 phòng/căn).
Gọi ngay [SĐT 0919 247 839] để được tư vấn và hỗ trợ chọn căn ưng ý.

Baia Retreat Hội Vân không đơn thuần là bất động sản nghỉ dưỡng, mà là một hệ sinh thái wellness cao cấp với chuỗi tiện ích chăm sóc sức khỏe và trị liệu khoáng nóng hiếm có:
Trung tâm spa – trị liệu khoáng nóng
Hồ khoáng ngoài trời, bồn tắm khoáng cá nhân tại từng villa
Vườn thiền, khu detox, yoga
Công viên khoáng học theo chủ đề
Khu ẩm thực chăm sóc sức khỏe
Trung tâm thể thao, hồ bơi, khu vui chơi trẻ em
Khách sạn chuẩn wellness quốc tế
Baia Retreat là một trong rất ít dự án tại Việt Nam hội tụ đủ 3 yếu tố: mỏ khoáng – đối tác Nhật – hạ tầng kết nối sân bay + du lịch biển.
Giả định sở hữu 1 căn liền kề, tổng giá trị đầu tư và hoàn thiện: 6 tỉ (4 tỉ giá trị sản phẩm và 2 tỉ hoàn thiện)
Video 1 room do Naniwa Issui vận hành
– Giả sử: chia được 10 phòng (15m2/phòng)
– Tỷ lệ lấp đầy 40%/năm (~ 146 ngày full phòng trong năm)
– Mỗi phòng thuê 1 ngày 500.000 VND/phòng/ngày
Với pháp lý sở hữu lâu dài đây là một trong những kênh đầu tư, tích trữ tài sản trong tương lai và cho thế hệ mai sau.
(*) Đánh giá đây là tỷ suất sinh lời rất cao so với lãi suất ngân hàng và các sản phẩm dòng tiền khác. Thậm chí những dự án có yếu tố nghỉ dưỡng khoáng nóng, tỷ lệ lấp đầy và giá thuê phòng trung bình có thể cao hơn.
Bình Định đã có biển đẹp (Kỳ Co, Eo Gió), có văn hóa (Champa, Quang Trung), có ẩm thực… nhưng thiếu điểm dừng chân wellness đẳng cấp.
Baia Retreat Hội Vân chính là mảnh ghép hoàn hảo giúp du lịch Bình Định giữ chân khách lâu hơn, mang đến trải nghiệm chăm sóc thân – tâm – trí trọn vẹn, như Yoko Onsen Quang Hanh của Sun Group hay Wyndham Thanh Thủy tại miền Bắc.
Wyndham Thanh Thuỷ Phú Thọ : Thu hút lượng khách hàng rất đông hàng tuần và gần như full phòng trong các dịp lễ tết, kì nghỉ dài. Dự án sở hữu còn ~42 năm, giá bán từ 8 đến hơn 15 tỉ/sản phẩm

Yoko Onsen Quang Hanh Quảng Ninh : Khu nghỉ dưỡng tắm khoáng nóng Yoko Onsen Quang Hanh của Sun Group là “Khu nghỉ dưỡng được yêu thích nhất 2023“ Dự án sở hữu 50 năm, giá bán từ 15 tỉ – 2 triệu USD/sản phẩm

Case Study của mô hình thành công của du lịch wellness retreat ở Đà Nẵng


Chính sách thanh toán dài hạn và có ngân hàng hỗ trợ vay

Hỗ trợ trả góp 0% lãi suất trong 24 tháng ( 10% ký HĐMB )
Booking chỉ từ 50 triệu đồng nhận ngay chiết khấu 3%
Pháp lý đang có: CTĐT, GPXD

TTVN – Tập đoàn trường thành ( top 3 doanh nghiệp dẫn đầu năng lượng sạch Việt Nam ) kết hợp Naniwa Issui ( đơn vị khai thác vận hành nghỉ dưỡng chăm sóc sức khoẻ bằng khoáng nóng 100 năm kinh nghiệm tại Nhật Bản )
Baia Retreat Hội Vân không chỉ là một nơi để ở – mà là một nơi để trở về, để chữa lành, để đầu tư lâu dài và truyền lại cho thế hệ mai sau.
Gọi ngay [SĐT 0919 247 839] hoặc để lại thông tin để nhận:
Sơ đồ phân lô chi tiết
Bảng hàng mới nhất
Ưu đãi giữ chỗ giai đoạn F1
Thôn Hội Vân, xã Cát Hiệp, huyện Phù Cát, tỉnh Bình Định. Cách sân bay Phù Cát khoảng 10km
Dự án có pháp lý rõ ràng, nằm trong quy hoạch được Thủ tướng phê duyệt tại Quyết định 1619/QĐ-TTg. Chủ đầu tư TTVN Group đã hoàn thiện pháp lý từng giai đoạn, phù hợp để đầu tư lâu dài.
Baia Retreat là dự án duy nhất tại Bình Định có onsen chuẩn Nhật Bản, suối khoáng nóng tự nhiên, và đơn vị vận hành quốc tế từ Nhật – Naniwa Issui. Đây không chỉ là nghỉ dưỡng mà còn là “wellness destination”.
Suối khoáng nóng Hội Vân có thành phần tương tự các suối trị liệu tại Nhật Bản: sulfur, bicarbonate, natri, magie… giúp giảm đau xương khớp, cải thiện tuần hoàn, giấc ngủ và làn da. Đây là mạch khoáng hiếm, tự nhiên nằm sâu trong lòng đất.
Tắm onsen Hội Vân giúp thải độc, giảm đau khớp, thư giãn thần kinh, làm đẹp da và tăng sức đề kháng. Suối khoáng tự nhiên kết hợp thiền, xông đá muối và thảo dược Nhật mang lại hiệu quả trị liệu toàn diện cho thân – tâm – trí.
- Người cao tuổi, người đau khớp, Người làm việc căng thẳng, khó ngủ, Phụ nữ sau sinh, người phục hồi sau bệnh, Du khách muốn phục hồi năng lượng, thư giãn sâu.
Gọi ngay 0919247839 để được chọn nền và báo giá
Compare listings
So sánh